視鏡是工業管道裝置上主要附件之一,在石油、化工、醫藥、食品、造紙等工業生產裝置的管道中,能隨時觀察管道中液體、氣體、蒸汽等介質流動及反應情況,起到監視生產、避免生產過程中事故發生的作用。
二、產品型號標注

標記示例:
選擇單壓型法蘭連接式視鏡,內部結構擺板式,法蘭公稱壓力為0.6MPa,公稱直徑80mm,主體材料為低碳鋼。
表示方法:SG-Ⅱ-P-0.6-80/C。
表1
| 類 型 | 對 夾 型 |
單 壓 型 |
螺 紋 型 | 管 型 |
浮球型 | 框式 對夾型 |
框式單壓型 | 壓力容器 視鏡 |
其 它 |
|||
| 全螺紋 | 螺紋 連接 |
|||||||||||
| 連接 形式 |
法 蘭 |
法 蘭 |
螺 紋 | 法 蘭 |
螺 紋 |
法 蘭 |
法 蘭 |
法 蘭 |
帶 頸 |
法 蘭 |
||
| 代號 | Ⅰ | Ⅱ | Ⅲa | Ⅲb | Ⅴ | Ⅴa | Ⅴb | Ⅵ | Ⅶ | Ⅷa | Ⅷb | Ⅸ |
表2
| 結構形式 | 直頸式 | 縮頸式 | 偏頸式 | 葉輪式 | 擺板式 | 浮球式 |
| 示意圖 | ![]() |
![]() |
![]() |
![]() |
![]() |
![]() |
| 代號 | A | B | C | D | P | F |
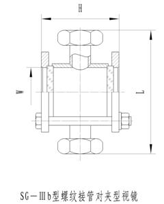
三、SG-Ⅲb螺紋接管對夾型視鏡技術參數:
| 公稱直徑DN | 窗徑W | H | L | 適用工況 |
| 8(1/4″) | 40 | 75 | 140 | PN≤1.6PMa 工作壓力≤1.0MPa 工作溫度0—180℃ |
| 10(3/8″) | 40 | 75 | 140 | |
| 15(1/2″) | 40 | 75 | 140 | |
| 20(3/8″) | 50 | 85 | 150 | |
| 25(1″) | 50 | 85 | 160 |

- 上一篇: SG-Ⅳ管型視鏡
- 下一篇: SG-Ⅲa全螺紋型視鏡










